咨詢電話
13924666952
400-158-1606
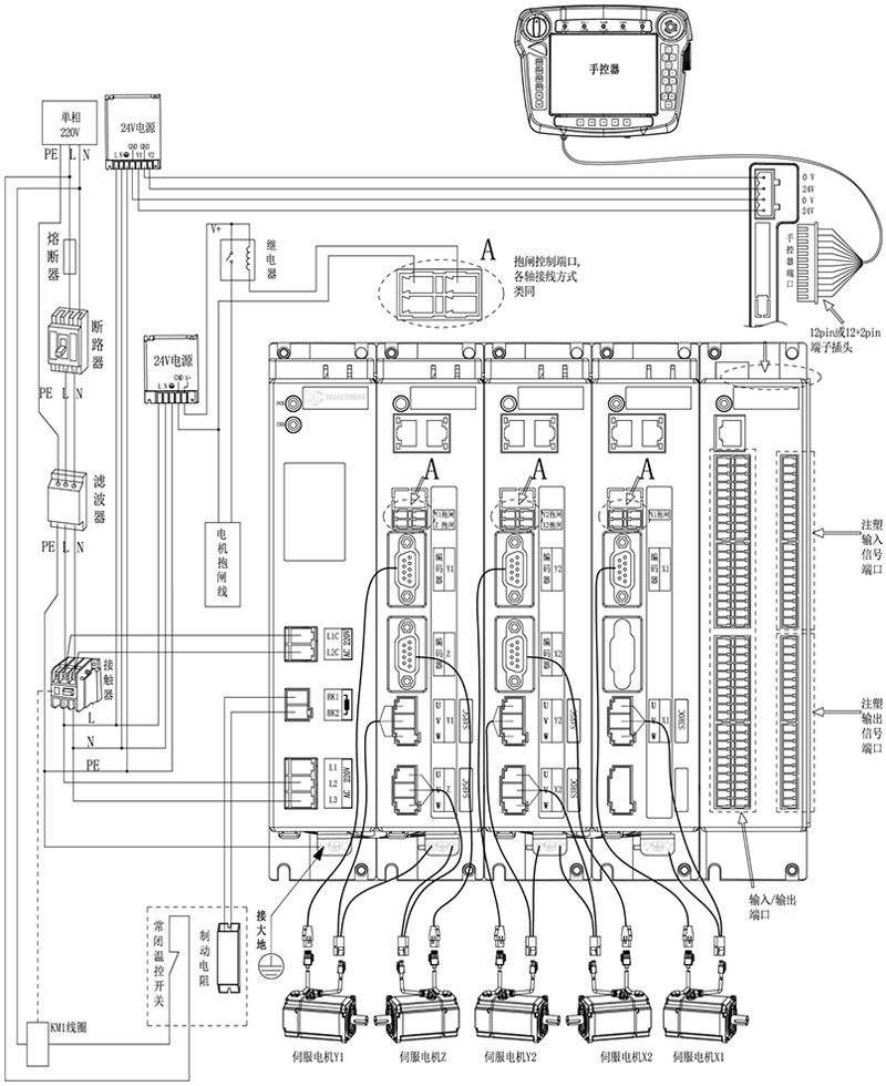
五軸注塑驅控一體化機械手控制系統-EC-S5,箱體整體外觀接線說明:

注意:
1)用戶需要自行評估IO電源是否超出標配50W,如超出,則需要自行更換大功率電源。
2)接線完成后手控器上出現的報警請按用戶手冊“8.4 報警及其解決方法”進行處理,報警有功能類和伺服報警類。
功能類報警:注塑多軸機械手控制系統功能類報警及解決方法,伺服類報警:注塑多軸機械手控制系統驅控一體伺服類報警信息及解決方法
版權所有 ? 深圳市華成工業控制股份有限公司 未經許可不得復制、轉載或摘編,違者必究 版權聲明
Copyright ? Shenzhen Huacheng Industrial Control Co., Ltd. All Rights Reserved.
網站ICP備案號: 粵ICP備19106162號
技術支持:新新網絡